Situationsplan
Grundriss 2. Untergeschoss
Grundriss 1. Untergeschoss
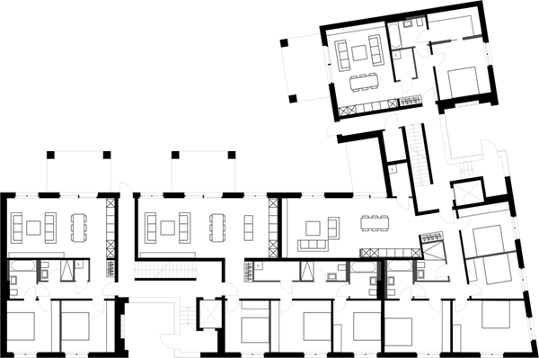
Grundriss Erdgeschoss

Neubau ein Mehrfamilienhaus mit Autoeinstellhalle
Kanonengasse 32/ Holbeinstrasse 33, 4051 Basel

Planung und Ausführung: 2017 - Herbst 2021

 

Bauherrschaft: Ferrara+Streule Kollektivgesellschaft

Ausführungsplanung: Ferrara Architekten AG

Bauleitung: Ferrara Architekten AG

 

Firma Stamm: Referenz Kanonengasse

Firma Menarvis: Referenz Kanonengasse

 

Das Baugrundstück liegt am, der Altstadt zugewandten Rand des Stadtquartiers „Am Ring“, dessen Bebauung gösstenteils im Zuge der ersten Stadterweiterung in den Jahren zwischen 1871 und 1900 erfolgte. Neben einigen grösseren Bauten mit parkähnlichen Gartenanlagen prägen Reihenhäuser mit eigenen Gärten das Quartier.

Heute gehört das Quartier zu den begehrten Wohnlagen der Stadt, da es neben einem ruhigen Wohnumfeld gleichzeitig zentral gelegen ist.

Die direkte Umgebung des Bauprojekts an der Ecke Kanonengasse/ Holbeinstrasse besteht aus einer Mischung aus historischen Reihenhäusern, neueren Mehrfamilienhäusern und gewerblich genutzte Bauten (Büronutzungen). Ebenso befindet sich die Kirche St. Marien in unmittelbarer Nähe.

 

Durch die exponierte Lage an der Ecke der Blockrandbebauung und die dadurch bedingte Präsenz des Baus mit zwei strassenseitigen Fassaden erfordert die Fassadengestaltung besondere Sorgfalt.

Ausgehend von Merkmalen der Umgebungsbauten, sowie klassischer Stilmittel zu Fassadenzonierung und –gestaltung von Stadthäusern wie z.B. Sockel/ Hochparterre, Erker, Gesimse, Fenstergewände, etc. wurde die Fassade entwickelt: Basis bildet eine strukturierte Putzfläche in welche systematisch die Fenster platziert wurden. Sonderteile wie Erker, Balkone, Sockel, Fenstergewände und die Betonung der Gebäudeecke, sowie der obere Abschluss der strassenbündigen Fassade werden in Farbe und Material abgesetzt bzw. akzentuiert und zonieren so die grossen Fassadenflächen. Das zurückspringende Attikageschoss lehnt sich in Farbigkeit und Materialität an die Hauptstockwerke an, ist jedoch insgesamt reduzierter und mit freierer Fensteranordnung geplant.

 

Alle 15 Eigentumswohnungen verfügen über einen grosszügiges Entrée, einen Wohn-Ess-Kochbereich, ein Réduit, mind. ein Badezimmer und mind. ein Gäste-WC (meist inkl. Dusche).

Durch die reduzierte Tragstruktur wurden innerhalb der Zonierung des Gebäudes und unter Beibehaltung der Fassadengestaltung individuelle Anpassungen der Grundrisseinteilung ermöglicht.

Die Wohnungen sind gem. SIA500 hindernisfrei (anpassbar) geplant.

 

Raumhohe Türen, hochwertige Materialien, Einbauobjekte und Technik namhafter Hersteller gehören selbstverständlich zur Grundausstattung.

Die Auswahl in Bezug auf Bodenmaterialien, Wandgestaltung, Farbgebung, sowie Bad- und Kücheneinrichtung wurde durch die Käuferschaft aktiv mitbestimmt.

Das Gebäude ist in Minergiebauweise errichtet worden.